Seyyar Sekonder Kırma Ünitesi



Seyyar Sekonder kırma ünitelerinin taşınabilir olması, kolay monte ve demonte edilerek kurulum maliyetlerinin düşük olması en avantajlı özelliklerindendir.

Teknik Özellikleri

seyyar sekonder kırma ünitesi teknik bilgi
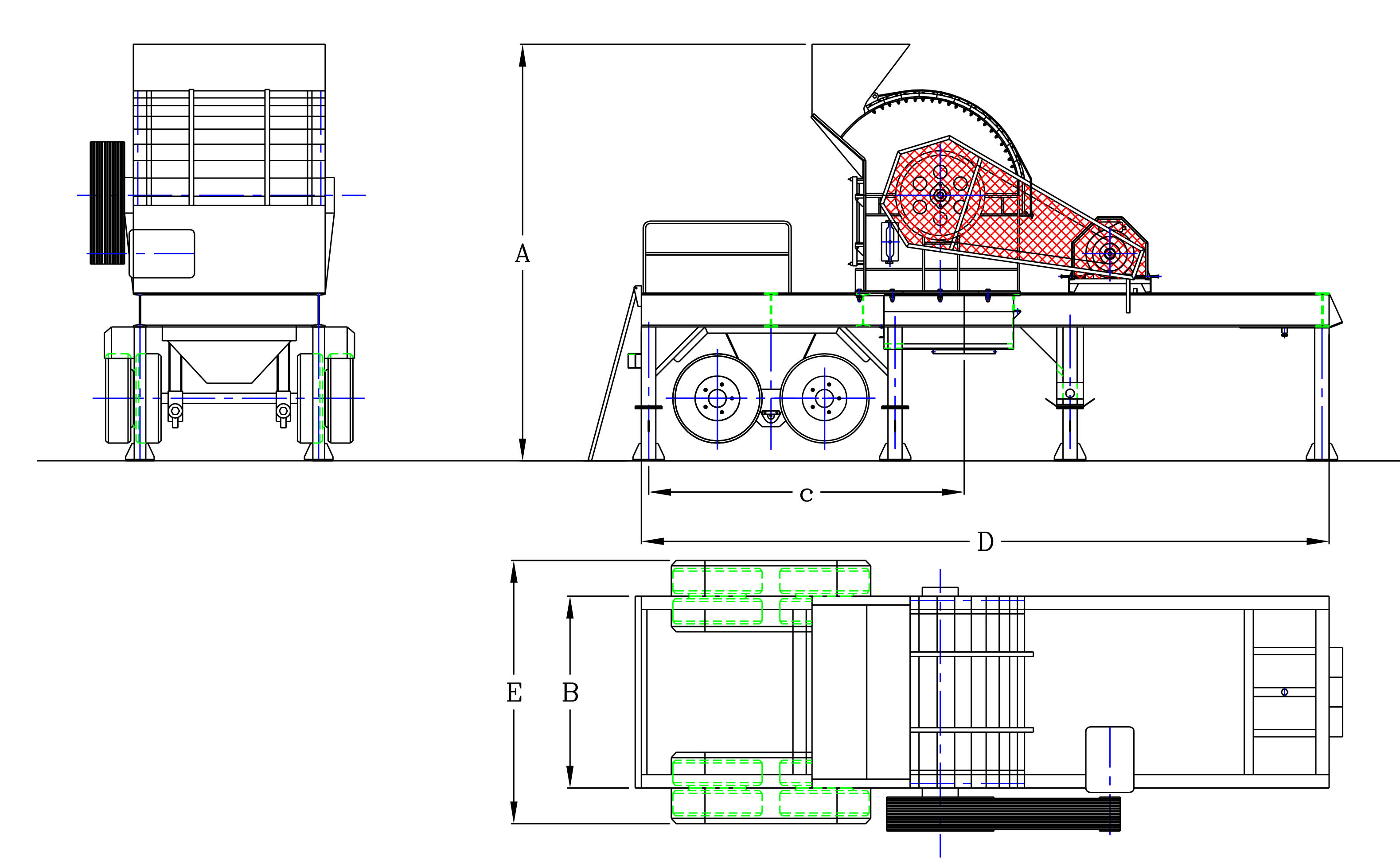
seyyar sekonder kırma ünitesi teknik çizim